La certezza di un'opportunità immobiliare

Capannone in Vendita Como-Camerlata – Rebbio, Via Repubblica Romana

  • 195.000€
Via Repubblica Romana, Rebbio, Como, Lombardia, 22100, Italia
  • Capannone
  • Tipo proprietà
  • 420
  • 1970
  • Anno di costruzione
Vendita
Capannone in Vendita Como-Camerlata – Rebbio, Via Repubblica Romana
Via Repubblica Romana, Rebbio, Como, Lombardia, 22100, Italia
  • 195.000€

Descrizione

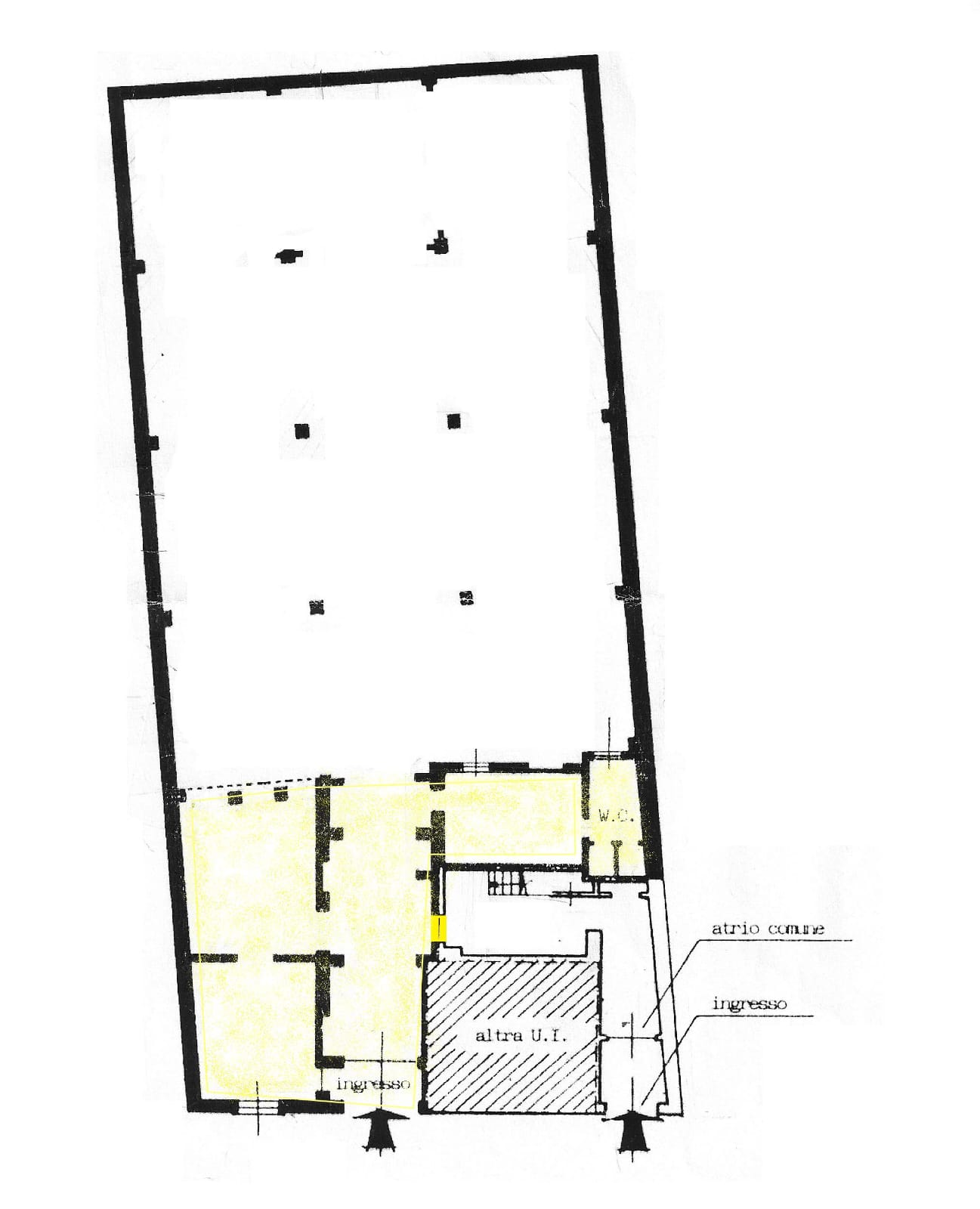
COMO-VIA ROMANA, Realcasa immobiliare propone in vendita cessione di volume pari a 2100 metri cubi. Vendesi opportunità per edificare una struttura al piano terra circa 420mq, l’altezza minima è 3,8 m, l’altezza massima è 6,3 m, il volume è circa 2100 metri cubi. Accesso da strada con marciapiede e a pochi minuti da un grande parcheggio. Oggi la struttura è inesistente. Suddiviso in ingresso carraio e pedonale separato, area servizi, area uffici e zona laboratorio. Oggi la destinazione è artigianale-laboratorio con possibilità di cambio di destinazione: palestra, residenziale… Zona del piano regolatore è CR1.1, previsti interventi integrativi o sostitutivi mediante permesso di costruire. Questa descrizione ha valore puramente indicativo e non costituisce elemento contrattuale.

  • Indirizzo Via Repubblica Romana, Rebbio, Como, Lombardia, 22100, Italia
  • Città Como
  • Provincia Lombardia
  • Cap 22100
  • Stato Italia

Dettagli

Aggiornato il Settembre 5, 2024 at 4:06 pm
  • ID Proprietà: FB195CO
  • Prezzo: 195.000€
  • Dimensione immobile: 420 m²
  • Anno di costruzione: 1970
  • Tipo proprietà: Capannone
  • Stato immobile: Vendita

Classe Energetica

  • Classe Energetica: G
  • Indice globale di rendimento energetico: 309,98 kWh/m2 anno
  • A+
  • A
  • B
  • C
  • D
  • E
  • F
  • 309,98 kWh/m2 anno | Classe energetica G
    G
  • H

Planimetrie

image

Descrizione:

Informazioni di contatto

Vedi gli annunci
Realcasa Immobiliare

Richiedi informazioni su questo immobile

0 Recensione

Ordina per:
Lascia una recensione

Lascia una recensione

Confronta Strutture

Confronta
Realcasa Immobiliare
  • Realcasa Immobiliare